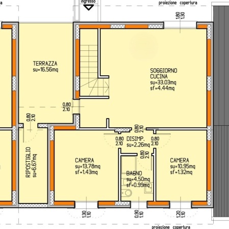
A due passi dal centro, appartamenti bicamere e biservizi al piano terra con ingresso indipendente, giardino, posto auto coperto e posto auto scoperto; appartamento bicamere e biservizi al primo piano con terrazza, ripostiglio, garage e posto auto scoperto; appartamento bicamere e biservizi al secondo piano mansardato con travi a vista, terrazza, ripostiglio, garage e posto auto scoperto.
Materiali isolanti ad alto rendimento, impianto fotovoltaico dedicato per ogni unità abitativa, impianto di riscaldamento a pavimento autonomo a pompa di calore, ascensore, optional di livello e predisposizione di ogni genere vi permetteranno di personalizzare la vostra abitazione a proprio piacimento.
Una nuova realizzazione tutta da scoprire, vieni in agenzia per chiedere ulteriori informazioni...
In accordo con l'impresa costruttrice, non c'è nessuna spesa di mediazione da corrispondere!















